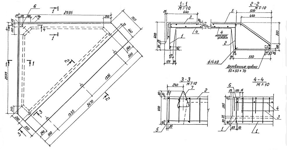
ДП 6.2
Характеристики изделия:
| Параметр | Значение |
|---|---|
| Длина | 2625 мм |
| Ширина | 2625 мм |
| Высота | 400 мм |
| Масса | 2300 кг |
| Нормативный документ | Серия 3.702.1-4 |
Цена:
Рассчитать стоимостьПлита днища ДП 6.2 по Серии 3.702.1-4.
| Параметр | Значение |
|---|---|
| Длина | 2625 мм |
| Ширина | 2625 мм |
| Высота | 400 мм |
| Масса | 2300 кг |
| Нормативный документ | Серия 3.702.1-4 |
Плита днища ДП 6.2 по Серии 3.702.1-4.