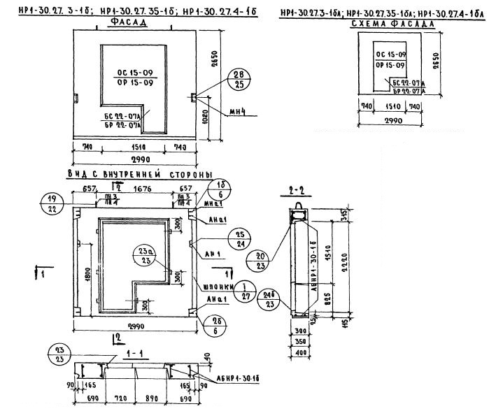
НР1-30.27.3-1бл

Чертеж изделия:
Чертеж НР1-30.27.3-1бл
Характеристики изделия:
ПараметрЗначение
Длина2990 мм
Ширина300 мм
Высота2650 мм
Масса2260 кг
Нормативный документСерия 1.132-1

НР1-30.27.3-1бл   Наружная стеновая панель рядовая по Серии 1.132-1.